Beschrijving

Wonen op een plek waar ruimte, rust en uitzicht samenkomen. Pastoor Rientjesstraat 5 ligt op een van de fraaiste kavels van de straat, met vrij uitzicht over de es en richting de Hellendoornse Berg.

De vrijstaande semibungalow biedt comfortabel wonen op de begane grond, met daarnaast verrassend veel extra ruimte. Rondom de woning ligt een fraai aangelegde tuin met meerdere terrassen en een overkapping, waardoor je op elk moment van de dag een plek in de zon of schaduw vindt.

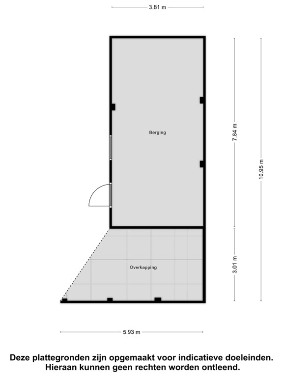
De royale vrijstaande garage en het volwaardige souterrain maken het huis bijzonder praktisch. Het souterrain heeft een goede hoogte, is voorzien van centrale verwarming, natuurlijke ventilatie en een WTW-installatie en is daardoor uitstekend geschikt als werkruimte, hobbyruimte of extra leefruimte.

Een woning voor wie het drukke leven achter zich wil laten en wil wonen met uitzicht, privacy en comfort — zonder afgelegen te zijn.

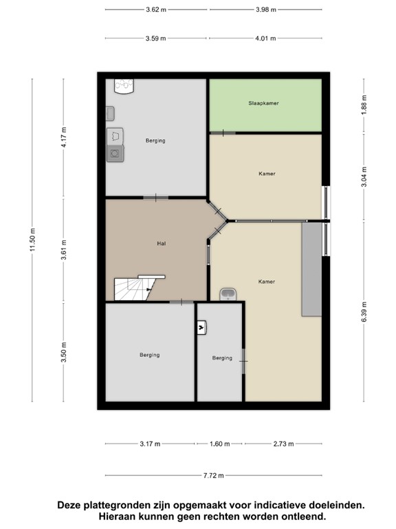
Indeling:

Parterre: fraaie entree/hal met vide, hangtoilet met fontein, vernieuwde meterkast, sfeervolle living in 2 gedeelten met o.a. tuindeuren naar terras op zuiden, mooie schouw met openhaard, afzelia parketvloer en magnifiek uitzicht. Voorts woon-/eetkeuken v.z.v. zo goed als nieuwe inrichting (2024) met eettafel/bar/eiland, Bora kookplaat met recirculatie, oven, vaatwasser op hoogte, RVS Amerikaanse koel-/vriescombinatie, veel kastruimten.

1e Verdieping: overloop/vide met grote kastenwand, 2 heel grote slaapkamers (eenvoudig terug te brengen in originele staat met 3 slaapkamers), badkamer met fraai tegelwerk (getrommeld marmer), hangtoilet, bidet, inloopdouche, meubel met hardstenen blad en 2 wastafels, designradiator. Voorts loggia aan voor- en achterzijde.

Souterrain: diverse multifunctionele ruimten met verwarming, ventilatie; een aantal met daglicht. 

Bijzonderheden:

- bouwjaar 1972, perceeloppervlakte 731 m²
- met vrijstaande garage en heel royale oprit
- woonoppervlakte parterre ca 88 m², woonoppervlakte 1e verdieping ca 55 m², woonoppervlakte souterrain ca 71 m²; totaal 214 m²
- v.z.v. dak- en muurisolatie uit 2023, voorts nagenoeg geheel glasisolatie; A-label
- woonkamer en woonkeuken gescheiden door luxe glazen wand met taatsdeuren
- meest recente schilderwerk 2024, professioneel uitgevoerd
- prachtige besloten tuin aan achterzijde, open tuin met vrij uitzicht aan westzijde
- tuin met terrassen, kleine overkapping, bron met pomp en plop-up systeem

**  Unieke object: verkrijg een juiste indruk tijdens een bezichtiging! **

Kenmerken