Beschrijving

Uitstekend gelegen, direct bij centrum op fraai gesitueerd hoekperceel, vrijstaand woonhuis. Met o.a. vrijstaande garage / berging / hobbyruimte, royale oprit en tuin rondom. Zeer eenvoudig slaap- en badkamer op begane grond te realiseren.

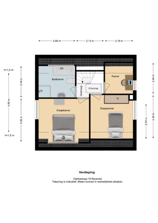
Indeling:

Parterre: royale entree/hal met trapopgang, garderobenis, hangtoilet met fontein, meterkast. Voorts sfeervolle / zonnige woonkamer met veel daglicht, keuken v.z.v. inrichting met inductiekookplaat, afzuigkap en toegang tot grote kelder en naar bijkeuken / achterentree.

1e verdieping: overloop, grote slaapkamer met dakkapel (v.z.v.HR++ glas), 2e en 3e (slaap)kamer, badkamer met ligbad, douchecabine, wastafel, hangtoilet en ook een dakkapel.

2e verdieping::vlizotrap naar zolderruimte.

Bijzonderheden:

- bouwjaar 1958, perceeloppervlakte 331 m², woonoppervlakte 98 m²
- uitstekende isolatievoorzieningen: dak-, muur- en glasisolatie (deels triple 2024)
- dak / dakpannen vernieuwd; fraaie geglazuurde pannen
- buiten- en binnen schilderwerk deels 2025
- deels nieuwe kunststof kozijnen
- met grote garage / berging / hobbyruimte, circa 29 m²

** sfeervol, praktisch, vrijstaand woonhuis direct bij centrum, heel eenvoudig slaap- en badkamer op begane grond te realiseren **

Kenmerken