Beschrijving

Dit betreft de op de hoek gesitueerde woning: verrassend ruim, uiterst solide en fraaie details.

Indeling:

Parterre: royale entree/hal met trapopgang, grote multifunctionele ruimte, toilet, toegang naar royale kelder, diverse bergruimten, royale (fietsen)berging.

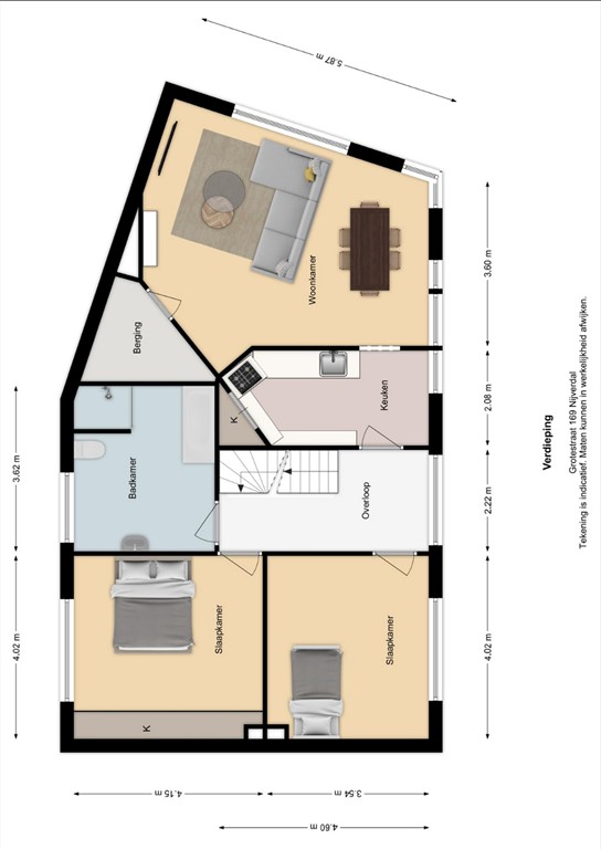
1e verdieping: overloop, sfeervolle woonkamer met schouw en parketvloer en met fraai uitzicht op kruising, keuken v.z.v. inrichting met gaskookplaat, afzuigkap en combimagnetron, 2 grote slaapkamers, heel royale badkamer met ligbad, inloopdouche, badkamermeubel en hangtoilet, bergruimten.

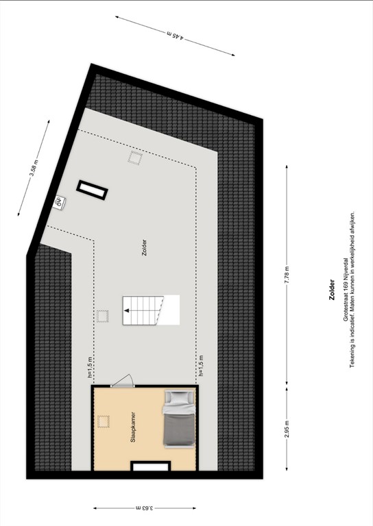
2e verdieping: vaste trap naar heel grote zolder / berging met 3e slaapkamer en prima mogelijkheden voor realiseren extra kamer(s) en sanitair.

Bijzonderheden: 

- bouwjaar 1930, perceeloppervlakte circa 203 m², woonoppervlakte 189 m², inhoud 740 m³
- v.z.v. dakisolatie en HR++glas, zonnepanelen en zonneboiler
- eventueel mogelijk te kopen met 2 garages, royaal parkeerterrein en extra tuin
- informeren naar de diverse mogelijkheden

Kenmerken