Beschrijving

Rustig gelegen, soort van woonerf / geen doorgaande weg, verrassend ruime middenwoning met o.a. voortuin en achtertuin op zuiden.

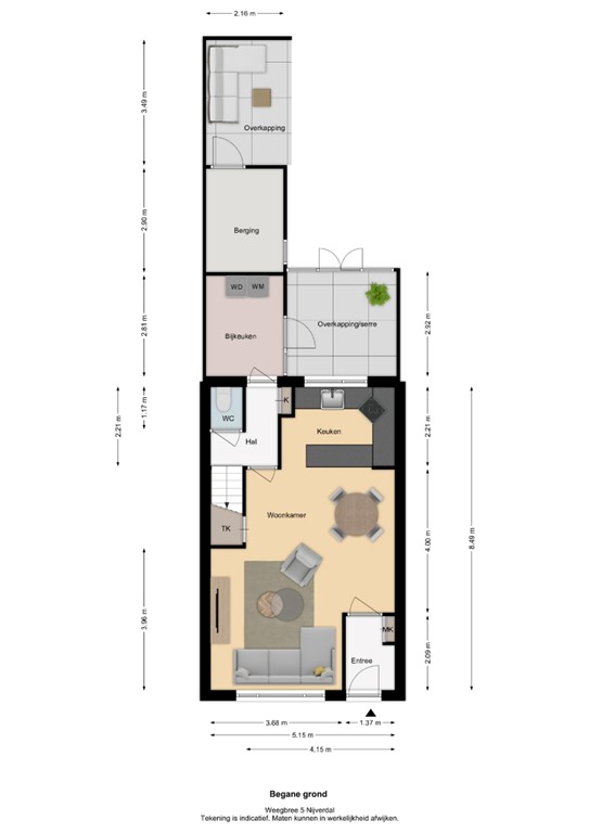
Indeling:

Parterre: entree/hal, meterkast, woonkamer, open keuken v.z.v. inrichting met inductiekookplaat, afzuigkap, vaatwasser, combimagnetron en close-in boiler. Voort tussenhal met trapopgang, toilet, royale bijkeuken / achterentree.

1e verdieping: overloop, 3 slaapkamers, badkamer met ligbad, douchecabine, wastafel en hangtoilet.

2e verdieping: vaste trap naar grote zolder / berging met 3 dakramen; eenvoudig extra slaapkamer te realiseren.

3e verdieping: "zolderruimte".

Bijzonderheden:

- bouwjaar 1987, perceeloppervlakte 146 m², inhoud 395 m³
- v.z.v. dak-, muur- vloer- en gedeeltelijk glasisolatie
- ATAG HR combiketel 2023, 10 zonnepanelen op zuiden

Kenmerken