Algemeen
Pal in centrum op heel groot perceel gesitueerd, volumineus woon- / winkelpand met o.a. grote tuin, extra opslag- / werkruimte, vrijstaande garage / kantoor / praktijkruimte.
Indeling:
Parterre: winkelruimte, magazijn, achterentree, kantoor. Entree/hal, toilet, kelder, woonkamer, woonkeuken.
1e Verdieping: overloop, 4 slaapkamers (origineel 5; eenvoudig te herstellen), badkamer met lig... Meer informatie
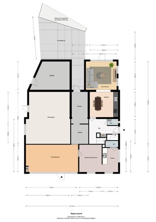
Indeling:
Parterre: winkelruimte, magazijn, achterentree, kantoor. Entree/hal, toilet, kelder, woonkamer, woonkeuken.
1e Verdieping: overloop, 4 slaapkamers (origineel 5; eenvoudig te herstellen), badkamer met lig... Meer informatie
-
Kenmerken
Alle kenmerken Type object Woonhuis, vrijstaande woning Bouwjaar 1935 Aangeboden sinds Vrijdag 6 juni 2025 -
Locatie
Kenmerken
| Overdracht | |
|---|---|
| Referentienummer | 7359/8642046 |
| Vraagprijs | € 750.000,- k.k. |
| Aangeboden sinds | Vrijdag 6 juni 2025 |
| Laatste wijziging | Vrijdag 27 juni 2025 |
| Bouw | |
|---|---|
| Type object | Woonhuis, vrijstaande woning |
| Soort bouw | Bestaande bouw |
| Bouwjaar | 1935 |
| Oppervlaktes en inhoud | |
|---|---|
| Perceeloppervlakte | 810 m² |
| Woonoppervlakte | 129 m² |
| Inhoud | 1.000 m³ |
| Tuinoppervlakte | 225 m² |
| Indeling | |
|---|---|
| Aantal bouwlagen | 2 |
| Aantal kamers | 5 (waarvan 4 slaapkamers) |
| Aantal badkamers | 1 (en 2 aparte toiletten) |
| Locatie | |
|---|---|
| Ligging | Dorp, In centrum |
| Uitrusting | |
|---|---|
| Kelder aanwezig | Ja |
| Tuin aanwezig | Ja |
| Heeft een garage | Ja |
| Heeft keuken | Ja |
Beschrijving
Pal in centrum op heel groot perceel gesitueerd, volumineus woon- / winkelpand met o.a. grote tuin, extra opslag- / werkruimte, vrijstaande garage / kantoor / praktijkruimte.
Indeling:
Parterre: winkelruimte, magazijn, achterentree, kantoor. Entree/hal, toilet, kelder, woonkamer, woonkeuken.
1e Verdieping: overloop, 4 slaapkamers (origineel 5; eenvoudig te herstellen), badkamer met ligbad douchehoek, hangtoilet, wastafelmeubel.
Bijzonderheden:
- bouwjaar 1935, nadien verbouwd en vergroot
- perceeloppervlakte 810 m³
- woning: woonoppervlakte 129 m², externe bergruimte 97 m²
- commerciële ruimten: 132 m²; gebouwgebonden buitenruimte 40 m²
- totale inhoud: ruim 1000 m³!
** Multifunctioneel pand, pal in centrum, groot perceel **
Indeling:
Parterre: winkelruimte, magazijn, achterentree, kantoor. Entree/hal, toilet, kelder, woonkamer, woonkeuken.
1e Verdieping: overloop, 4 slaapkamers (origineel 5; eenvoudig te herstellen), badkamer met ligbad douchehoek, hangtoilet, wastafelmeubel.
Bijzonderheden:
- bouwjaar 1935, nadien verbouwd en vergroot
- perceeloppervlakte 810 m³
- woning: woonoppervlakte 129 m², externe bergruimte 97 m²
- commerciële ruimten: 132 m²; gebouwgebonden buitenruimte 40 m²
- totale inhoud: ruim 1000 m³!
** Multifunctioneel pand, pal in centrum, groot perceel **