Algemeen
Prachtig gelegen, te midden van heel veel groen, mooie bomen en verkeersluw, een in perfecte staat van onderhoud verkerend vrijstaand woonhuis. Uiterst solide gebouwd en met o.a tuin rondom met fraaie beplanting (o.a. fruitbomen: appel, peer, pruim, druiven) en een “Bennink-bouw” dubbele carport met extra inpandige berging. Voorts grote, in spouw uitgevoerde garage met sectionaal deur en brede... Meer informatie
-
Kenmerken
Alle kenmerken Type object Woonhuis, vrijstaande woning Bouwjaar 2000 Status Verkocht Aangeboden sinds Vrijdag 1 augustus 2025 -
Locatie
Kenmerken
| Overdracht | |
|---|---|
| Referentienummer | 7359/8694612 |
| Vraagprijs | € 795.000,- k.k. |
| Status | Verkocht |
| Aangeboden sinds | Vrijdag 1 augustus 2025 |
| Laatste wijziging | Donderdag 15 januari 2026 |
| Bouw | |
|---|---|
| Type object | Woonhuis, vrijstaande woning |
| Soort bouw | Bestaande bouw |
| Bouwjaar | 2000 |
| Isolatievormen | Volledig geïsoleerd |
| Oppervlaktes en inhoud | |
|---|---|
| Perceeloppervlakte | 635 m² |
| Woonoppervlakte | 134 m² |
| Inhoud | 485 m³ |
| Tuinoppervlakte | 162 m² |
| Indeling | |
|---|---|
| Aantal kamers | 5 (waarvan 4 slaapkamers) |
| Aantal badkamers | 2 (en 2 aparte toiletten) |
| Uitrusting | |
|---|---|
| Heeft een achtertuin | Ja |
| Tuin aanwezig | Ja |
| Heeft een garage | Ja |
| Heeft een parkeerplaats | Ja |
| Heeft keuken | Ja |
Beschrijving
Prachtig gelegen, te midden van heel veel groen, mooie bomen en verkeersluw, een in perfecte staat van onderhoud verkerend vrijstaand woonhuis. Uiterst solide gebouwd en met o.a tuin rondom met fraaie beplanting (o.a. fruitbomen: appel, peer, pruim, druiven) en een “Bennink-bouw” dubbele carport met extra inpandige berging. Voorts grote, in spouw uitgevoerde garage met sectionaal deur en brede loopdeur en een heel grote oprit voor meerdere auto’s / caravan / camper.
Indeling:
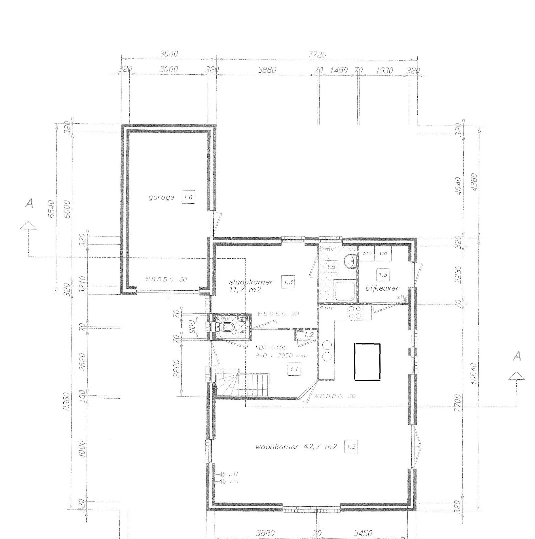
Parterre: entree/hal met trapopgang, luxe, vernieuwd Japans hangtoilet en wastafel, sfeervolle woonkamer met o.a. houtkachel, tuindeuren naar terras en veel daglicht. Voorts open keuken met recent geplaatste, uiterst luxe top kwaliteit keuken met Siemens inbouwapparatuur: inductiekookplaat met geïntegreerde afzuiging, vaatwasser op hoogte, luxe oven / combimagnetron, vergrootte koelkast, heel veel korven / laden / kasten. Op de begane grond ook een grote slaapkamer met aangrenzende badkamer v.z.v. inloopdouche en wastafelmeubel en een achterentree / bijkeuken.
1e Verdieping: overloop, 3 slaapkamers waarvan 1 met heel groot walk-in-closet (4e slaapkamer eenvoudig te realiseren), vernieuwde, volledig betegelde badkamer met royale inloopdouche, luxe meubel met dubbele wastafel, 2e Grohe Japans hangtoilet en extra elektrische designradiator. Grote berging met o.a. Intergas HR combiketel uit 2022.
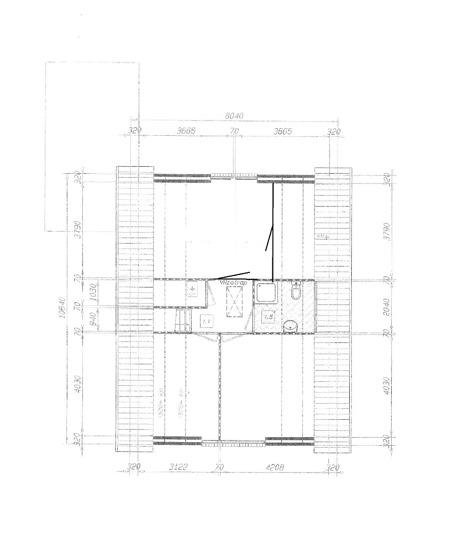
2e Verdieping: vlizotrap naar heel ruime zolder / berging.
Bijzonderheden:
- bouwjaar 2000, perceeloppervlakte 483 m²
- v.z.v. dak-, muur-, vloer- en glasisolatie
- v.z.v. 13 stuks 430 Wp zonnepanelen 2024
- voorts: nieuwe airco met buitenunit, elektrische rolluiken, alarminstallatie
- prachtig aangelegde tuin met fruitbomen en meerdere terrassen
- slaap- en badkamer op parterre; op verdieping nu 3 slaapkamers; eenvoudig 4e, totaal dus 5e te realiseren
- kunststof kozijnen en -deuren; het minimale aanwezige houtwerk perfect in de verf
** een juiste indruk van dit topobject verkrijgt u uitsluitend tijdens een bezichtiging **
verbeterde energielabel en gekleurde plattegronden in voorbereiding
Indeling:
Parterre: entree/hal met trapopgang, luxe, vernieuwd Japans hangtoilet en wastafel, sfeervolle woonkamer met o.a. houtkachel, tuindeuren naar terras en veel daglicht. Voorts open keuken met recent geplaatste, uiterst luxe top kwaliteit keuken met Siemens inbouwapparatuur: inductiekookplaat met geïntegreerde afzuiging, vaatwasser op hoogte, luxe oven / combimagnetron, vergrootte koelkast, heel veel korven / laden / kasten. Op de begane grond ook een grote slaapkamer met aangrenzende badkamer v.z.v. inloopdouche en wastafelmeubel en een achterentree / bijkeuken.
1e Verdieping: overloop, 3 slaapkamers waarvan 1 met heel groot walk-in-closet (4e slaapkamer eenvoudig te realiseren), vernieuwde, volledig betegelde badkamer met royale inloopdouche, luxe meubel met dubbele wastafel, 2e Grohe Japans hangtoilet en extra elektrische designradiator. Grote berging met o.a. Intergas HR combiketel uit 2022.
2e Verdieping: vlizotrap naar heel ruime zolder / berging.
Bijzonderheden:
- bouwjaar 2000, perceeloppervlakte 483 m²
- v.z.v. dak-, muur-, vloer- en glasisolatie
- v.z.v. 13 stuks 430 Wp zonnepanelen 2024
- voorts: nieuwe airco met buitenunit, elektrische rolluiken, alarminstallatie
- prachtig aangelegde tuin met fruitbomen en meerdere terrassen
- slaap- en badkamer op parterre; op verdieping nu 3 slaapkamers; eenvoudig 4e, totaal dus 5e te realiseren
- kunststof kozijnen en -deuren; het minimale aanwezige houtwerk perfect in de verf
** een juiste indruk van dit topobject verkrijgt u uitsluitend tijdens een bezichtiging **
verbeterde energielabel en gekleurde plattegronden in voorbereiding