Algemeen
Dit betreft de op de hoek gesitueerde woning: verrassend ruim, uiterst solide en fraaie details.
Indeling:
Parterre: royale entree/hal met trapopgang, grote multifunctionele ruimte, toilet, toegang naar royale kelder, diverse bergruimten, royale (fietsen)berging.
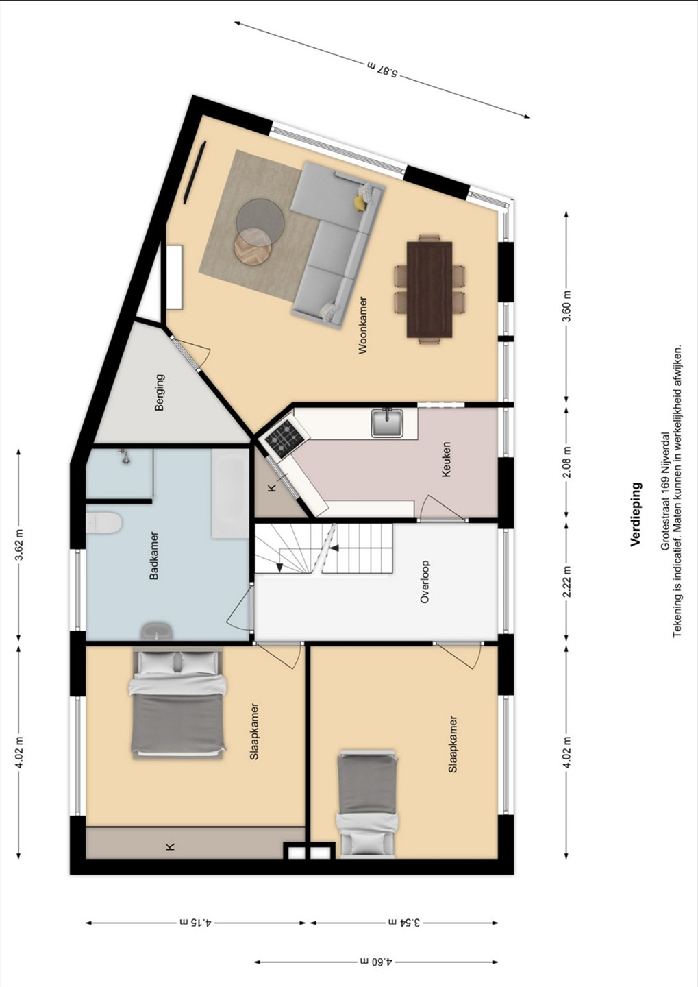
1e verdieping: overloop, sfeervolle woonkamer met schouw en parketvloer en met fraai uitzicht op kruising, keuken v.z.v. inr... Meer informatie
Indeling:
Parterre: royale entree/hal met trapopgang, grote multifunctionele ruimte, toilet, toegang naar royale kelder, diverse bergruimten, royale (fietsen)berging.
1e verdieping: overloop, sfeervolle woonkamer met schouw en parketvloer en met fraai uitzicht op kruising, keuken v.z.v. inr... Meer informatie
-
Kenmerken
Alle kenmerken Type object Woonhuis, tussenwoning Bouwjaar 1930 Status Nieuw in verkoop Aangeboden sinds Zaterdag 21 februari 2026 -
Locatie
Kenmerken
| Overdracht | |
|---|---|
| Referentienummer | 7359/8879455 |
| Prijs | Prijs op aanvraag |
| Status | Nieuw in verkoop |
| Aangeboden sinds | Zaterdag 21 februari 2026 |
| Laatste wijziging | Woensdag 4 maart 2026 |
| Bouw | |
|---|---|
| Type object | Woonhuis, tussenwoning |
| Soort bouw | Bestaande bouw |
| Bouwjaar | 1930 |
| Isolatievormen | Dakisolatie |
| Oppervlaktes en inhoud | |
|---|---|
| Perceeloppervlakte | 203 m² |
| Woonoppervlakte | 189 m² |
| Inhoud | 740 m³ |
| Indeling | |
|---|---|
| Aantal bouwlagen | 4 |
| Aantal kamers | 6 (waarvan 3 slaapkamers) |
| Aantal badkamers | 1 (en 2 aparte toiletten) |
| Locatie | |
|---|---|
| Ligging | Dorp |
| Uitrusting | |
|---|---|
| Kelder aanwezig | Ja |
| Tuin aanwezig | Ja |
| Heeft een garage | Ja |
| Heeft keuken | Ja |
Beschrijving
Dit betreft de op de hoek gesitueerde woning: verrassend ruim, uiterst solide en fraaie details.
Indeling:
Parterre: royale entree/hal met trapopgang, grote multifunctionele ruimte, toilet, toegang naar royale kelder, diverse bergruimten, royale (fietsen)berging.
1e verdieping: overloop, sfeervolle woonkamer met schouw en parketvloer en met fraai uitzicht op kruising, keuken v.z.v. inrichting met gaskookplaat, afzuigkap en combimagnetron, 2 grote slaapkamers, heel royale badkamer met ligbad, inloopdouche, badkamermeubel en hangtoilet, bergruimten.
2e verdieping: vaste trap naar heel grote zolder / berging met 3e slaapkamer en prima mogelijkheden voor realiseren extra kamer(s) en sanitair.
Bijzonderheden:
- bouwjaar 1930, perceeloppervlakte circa 203 m², woonoppervlakte 189 m², inhoud 740 m³
- v.z.v. dakisolatie en HR++glas, zonnepanelen en zonneboiler
- eventueel mogelijk te kopen met 2 garages, royaal parkeerterrein en extra tuin
- informeren naar de diverse mogelijkheden
Indeling:
Parterre: royale entree/hal met trapopgang, grote multifunctionele ruimte, toilet, toegang naar royale kelder, diverse bergruimten, royale (fietsen)berging.
1e verdieping: overloop, sfeervolle woonkamer met schouw en parketvloer en met fraai uitzicht op kruising, keuken v.z.v. inrichting met gaskookplaat, afzuigkap en combimagnetron, 2 grote slaapkamers, heel royale badkamer met ligbad, inloopdouche, badkamermeubel en hangtoilet, bergruimten.
2e verdieping: vaste trap naar heel grote zolder / berging met 3e slaapkamer en prima mogelijkheden voor realiseren extra kamer(s) en sanitair.
Bijzonderheden:
- bouwjaar 1930, perceeloppervlakte circa 203 m², woonoppervlakte 189 m², inhoud 740 m³
- v.z.v. dakisolatie en HR++glas, zonnepanelen en zonneboiler
- eventueel mogelijk te kopen met 2 garages, royaal parkeerterrein en extra tuin
- informeren naar de diverse mogelijkheden